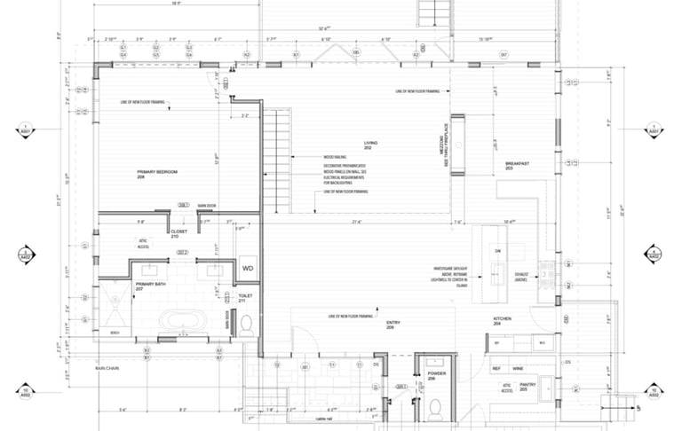
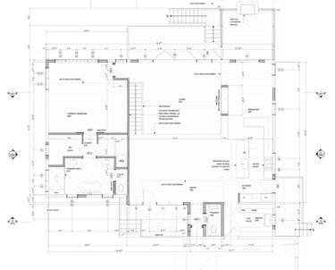
Whiskey Creek Renovation
Major renovation of an existing house. New work includes roof reframing and a reorganization of all the Main Level into a centralized Dining/Living/Kitchen space.










CONTACT
828.335.2919
lauren@designwisestudio.us
Brevard, NC
designWise studio is a residential architecture firm based in Brevard, North Carolina, specializing in custom homes, renovations, and modern mountain architecture. We design thoughtful, site-specific homes throughout Brevard, Transylvania County, and Western North Carolina.
