Cooper House- 1890
This Victorian home, built circa 1890, has seen years of neglict after passing through numerous owners. The current owners love the house and are committed to restoring it back to it's former glory.
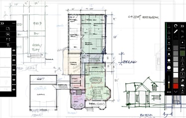
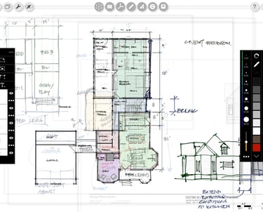
DesignWise studio is providing full architectural and restoration services for this existing home and designing a modern addition as a counterpoint to the historical architecture.






















The interior is completely gutted.
The house is smallish for their family, so we will also be designing a large addition at the rear. The existing house will be "public" space and the addition "private".
The new modern addition will replace a number of additions to the back of the house that were added over the years.
CONTACT
828.335.2919
lauren@designwisestudio.us
Brevard, NC
designWise studio is a residential architecture firm based in Brevard, North Carolina, specializing in custom homes, renovations, and modern mountain architecture. We design thoughtful, site-specific homes throughout Brevard, Transylvania County, and Western North Carolina.
