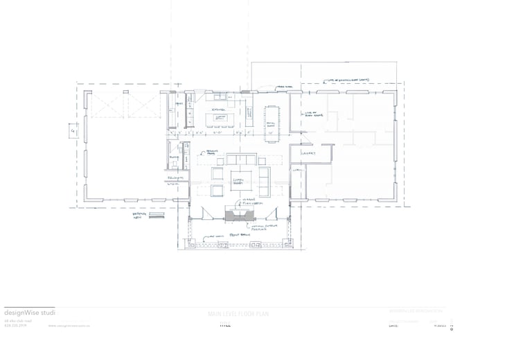
Hendersonville Renovation
This is an existing house the the Owner's Father designed and built. We are reworking all the public spaces with a reconfigured Kitchen, Living Room and Dining Room.
Part of the intent was to bring the exteriors into a more contemporary language. We did a couple of preliminary conceptual perspectives to help with visualization.








CONTACT
828.335.2919
lauren@designwisestudio.us
Brevard, NC
designWise studio is a residential architecture firm based in Brevard, North Carolina, specializing in custom homes, renovations, and modern mountain architecture. We design thoughtful, site-specific homes throughout Brevard, Transylvania County, and Western North Carolina.
