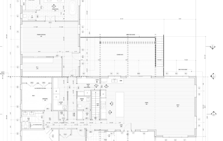
Brevard Renovation
This renovation of an existing home for a growing family includes a nearly full reframe of the Main Level and a new addition to hold the Primary Suite.
This project is also focused on green building techniques including exterior insulation.
Builder: Sycamore Builders.














CONTACT
828.335.2919
lauren@designwisestudio.us
Brevard, NC
designWise studio is a residential architecture firm based in Brevard, North Carolina, specializing in custom homes, renovations, and modern mountain architecture. We design thoughtful, site-specific homes throughout Brevard, Transylvania County, and Western North Carolina.
